Idealer Familienbetrieb!
Zukunftsweisende Gastronomie - Wohnen und Arbeiten vereint!
Kaufpreis:
750.000,00 €
Gesamtfläche:
900 m²
Grundstück:
950 m²
Lagerfläche:
450 m²
Gastrofläche:
190 m²
Details
Gesamtfläche:
900,00 m²
Grundstück:
950,00 m²
Lagerfläche:
450,00 m²
Gastrofläche:
190,00 m²
Terrassen:
2
Sitzplätze im Gastraum:
110
Ausstattung
Ausstattung
Oelbefeuerung
✓
vollständig möbliert
✓
Standort
94072
Bad Füssing |
Deutschland
Zustand
Zustand
Baujahr:
1979
Objektinformationen
Kaufpreis:
750.000,00 €
Provision:
provisionspflichtig!
Käuferprovision:
zzgl.3,57% Käuferprovision
MwSt Satz:
19 %
Objektbeschreibung
Im geschichtsträchtlichen Ortsteil Aigen am Inn der Gemeinde Bad Füssing, Europas Heilbad Nr. 1, können Sie Ihren Traum verwirklichen.
Zum Kauf angeboten wird ein alt eingesessenes Gasthaus. Der Gasthof wurde 1979 grundlegendst saniert und neu aufgebaut. Die gepflegte Aussenfassade sticht sofort mit einer gut erhaltenen "Lüftl-Malerei" ins Auge.
Im Erdgeschoss finden Sie vor: - das urige Gastzimmer mit zwei Nebenzimmern (Sitzplätze ca. 100-110), - zwei Biergärten (vorne zur Straße und im Hinterhof das "Lindenbiergartl" ca. 70-80 Plätze) - die Küche mit Kühlräumen - barrierefrei begehbare Toiletten
Im Obgergeschoss wurden 1998 - 2000 ehemalige Büroräume komplett umgebaut und es entstanden 8 hochwertige Appartements (tlw. 2-Raum) und Gästezimmer (ca. 160 m² Nfl.). Die Vermietung der Appartements ermöglichen Zusatzeinnahmen zum Gasthaus.
Im Dachgeschoss finden Sie eine großzügige 4-Zimmer-Wohnung mit ca. 120 m² Wohnfäche vor. Die Wohnung wurde erst 1995 errichet. Die Wohnung eignet sich ideal als Betreiberwohnung!
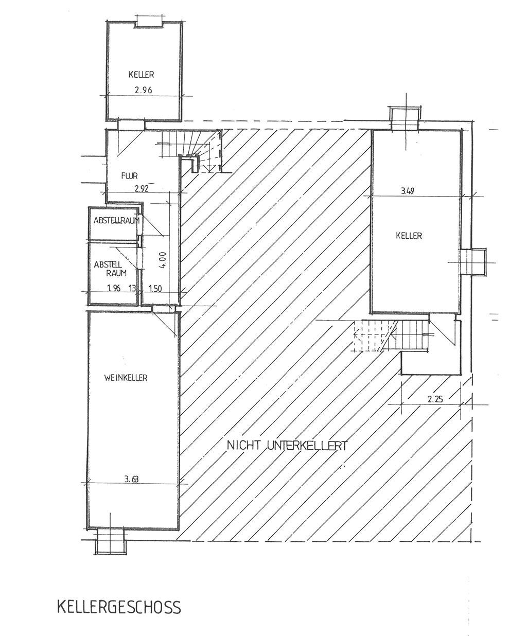
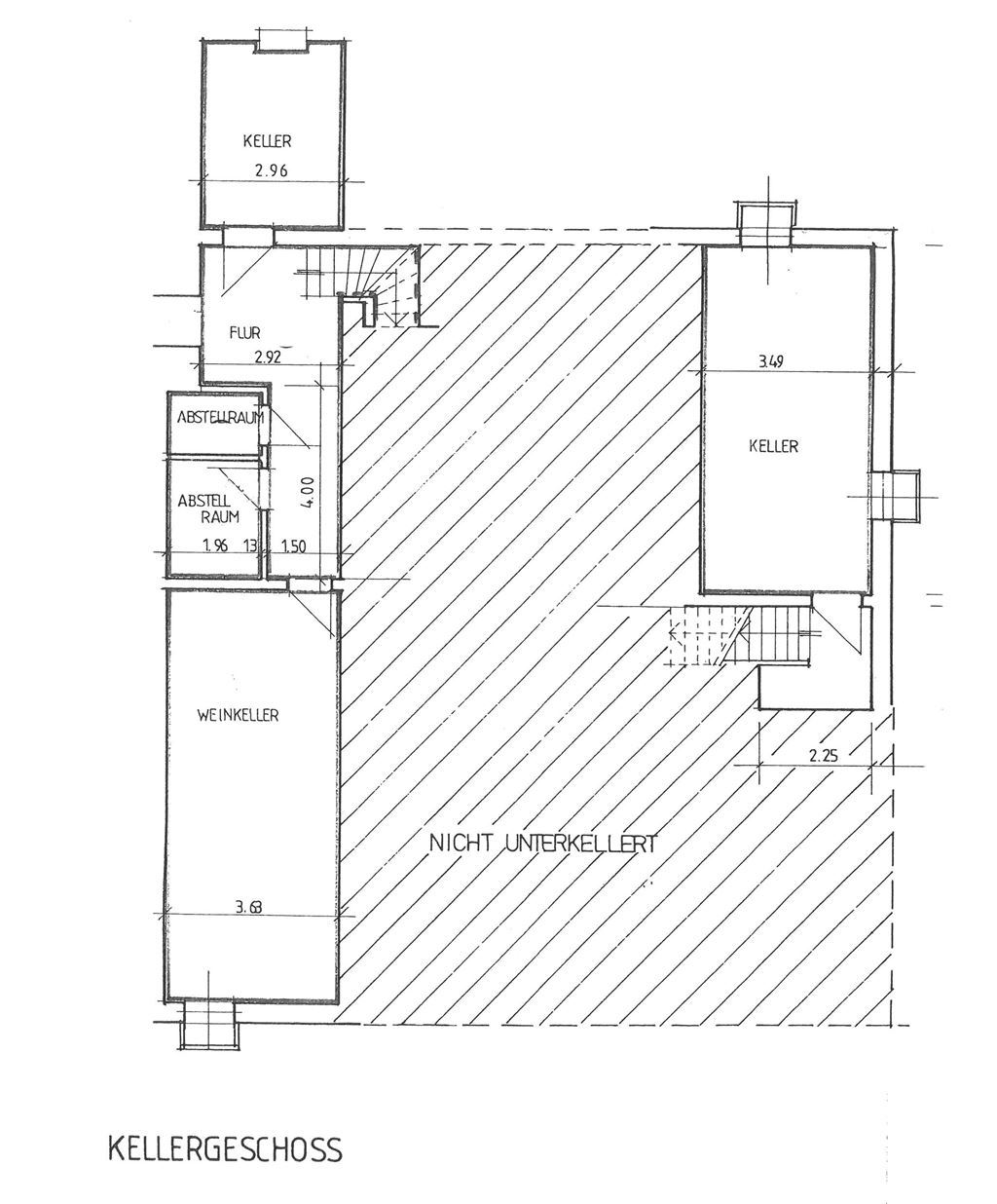
Im Untergeschoss finden Sie noch weitere Kühl-bzw. Lagermöglichkeiten vor.
Auf dem ca. 950 m² großen Grundstück befinden sich weiter Garagen - Maschinenhalle (hohes Tor) - Lagerräume. Es ist genügend Platz vorhanden.
Der historische Ort ist ein Garant für die Attraktivität des Gasthauses.
Lage
Der über die Grenzen in Deutschland hinaus bekannte Kur- und Wellnessort Bad Füssing trägt mit seinen reichhaltigen kulturellen Veranstaltungen mit namhaften Interpreten wesentlich zu einer hohen Lebensqualität bei. Der Urlaubsort neben dem Naturschutzgebiet zwischen Rott und Inn bietet neben den bekannten Heilquellen reichhaltige Freizeitprogramme wie z.B. Golfen, auf 7 x 18-Löcher Golfplätzen in unmittelbarer Nähe.
In ruhiger Lage am grünen Inn, ohne Durchgangsverkehr, nur wenige Kilometer vom Weltbad Bad Füssing entfernt, bietet Aigen am Inn vielfältige Möglichkeiten.
Über 1000 Jahre Aigen am Inn gibt es vieles zu erzählen.
Am einfachsten, Sie sehen sich direkt die Homepage an.
Selbstverständlich verbleibt sämtliche Einrichtung / Inventar etc. im Hause.
sonstige Angaben
Das Brandschutzkonzept wurde 2018 erfolgreich umgesetzt und ist somit erfüllt.
Das Gasthaus ist weiterhin geöffnet und in Betrieb. Sollten Sie noch an Ihrem Vermieter gebunden, stellt dies kein Problem dar. Ein für beide Seiten vernünftiger Übergabezeitraum ist jederzeit verhandelbar.
Energiepass
Baujahr:
1979
Energiepass Art:
Verbrauch
gültig bis:
27.03.2030
Verbrauchkennwert:
93,3 kWh/(m²a)
Primärenergieträger:
Öl,Holz
Energieeffizienzklasse:
C
Baujahr:
1979-1995
Ausstelldatum:
28.02.2020
Gebäudeart:
wohn
Nehmen Sie jetzt unverbindlich Kontakt zu uns auf!